PROJECTS

PROJECTS

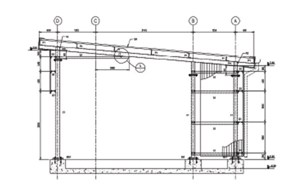
Vessel Platforms

Structural detailed drawings for 11 platforms supporting process vessels and tanks. The sizes of platform are circular and rectangular. The scope of work includes preparation of general arrangement drawings, detailed shop drawings with MTO For other four platforms, scope of work includes structural analysis and design of platforms and review as a professional engineer

Client: Lyondellbasell/Praj Industries

Location: Texas, USA

Key Deliverables:
* Structural design and GA drawings
* Shop drawings with MTO

Sonatrack Skids and Platforms

Structural Design includes, design for Inplace, Transportation and lifting cases. Analysis was done usingStaad Pro and design carried out using AISC 360-10. Structural General arrangement drawings is done using Autocad.

Client: Dodsal/Peerless, Dubai

Location: Alegria

Key Deliverables:
* Structural design and GA drawings with MTO
* Foundation and drawings

Jhabua Lift Irrgation Scheme

Civil and Structural design of pump station at 4 stages. Hydraulic design of approach channel and forebay connecting to pump house. Pump station -1 is 35m deep below ground and 20m high above ground. Hydraulic design to ensure 18m3/sec flow can be divereted from river to pump house.

Client: JMC Projects

Location: India

Key Deliverables:
* Structural design and GA drawings of Pumping station
* Hydrualic design of approach channel and forebay

3MLD Water treatment Plant for Tata Steel

Civil and Structural design of units such as Raw water tank, Permeate tank, Feed Pump station, Centrifuge building, Chemical dosing building, Cascade Aertor and Clariflculator

Client: Voltas Ltd

Location: India

Key Deliverables:
* Structural design and GA drawings
* Grading Plan of entire site

Ranchi Water Supply- Pumping & Gravity Supply

The Main Components of the Project Are:
1. Rising Main (Pumping) Hydraulic Design (including surge analysis) up to Underground water tank. (8.5 kms Length)
2. Gravity Main (Transmission Main & Distribution Main) Design from underground water tank to 32 different Zones including HSC (House Service Connections)

Client: JWL

Location: Ranchi City, Jharkhand State of India.

Senegal (West Africa) - Detailed Design


The Main Components of the Project Are:
1. Inlet pipeline from Tapping point to Undderground Sumps
2. Water Reservoir of 50000 cum capacity
3. Pumping Station
4. Rising Mains upto Water Tower including Surge analysis
5. Water Towers

HPD Scope Includes:
1. Hydraulic design of Pipeline (Rising Main)
2. Civil Structural
3. Electro Mechanical and Instrumentation
4. Architectural inputs

Client: ECOTRA

Location: New Diamniadio City, Dakar, Senegal, West Africa.

Sulphur Powering Tower

Structural Analysis
A Sulphur Powering Tower consisting of Pouring Arm each 48m long carrying high temperature Sulphur. The Structural analysis of entire tower and Pouring Arm is carried out for various load conditions such as dead load, live load, wind load and seismic load.
Pipe Stress analysis
A pipe stress analysis is carried out for jacketed pipe subjected to temperature variation at various loading conditions such as operation, testing and extreme weather. The jacketed pipe is checked for buckling to validate location of supports. The pipe is also checked for restrained offer due to Swivel joint.

Australia Project :
Abergeldie North Richmond Steel structure design


- Structural analysis and design of two nos. chemical dosing sheds including, design of steel roof, framing and cladding supports.
- Design was carried out using Australia (AS 4100) standards and detailing as per Sydney water standards. Project was delivered in tight schedule and quality deliverables.

CFD Analysis of Fish Ladder for Upper Karnali Dam


The broad outline of the Scope of work (SoW) includes the following work components.
a) Flow velocity distribution along the entire fish pass with different discharges in plan and at different sections.
b) Velocity in the fish pass at the junction point with reservoir when Reservoir Level at FRL (El 637.00) and MDDL (El 633.00)
c) Bed Shear stress in Fish pass
d) Types of Flow profile and different control sections in fish pass
e) Depth and velocity of flow above each waffle
f) Velocity in the pool area
g) Velocity of flow through the smaller openings provided in the waffles for passage of lesser - energetic fish species.
h) Exit velocity at the junction of fish pass - Karnali river corresponding to different water depth in river i.e. Impact of Different River flow at Downstream of Fish pass
i) Formation of jumps / eddies
j) Locations of low velocity zones which would act as resting pools
k) Exploring modification to improve the efficiency

Solar - PV Module Support Design


The design of supporting structure for various PV Modules. The structural design and drawings was carried out and support during fabrication and installation was provided.

Water Recirculation System


The proposed Water Recirculation System for physical modelling center in Bihar. The recirculation system consists of Water Tank (25m Diameter) , Pump station (20mx 8m) , Sump (25mx25m) , Pipeline (750mm diameter) supplying water to various physical models and collected by return channel.

Hydraulic analysis (pipeline):
The hydraulic analysis of pipeline is done using EPANET to check pressure at various locations. The hydraulic design of channel and physical model is carried out using HEC-RAS.
• Design and detailing is done along Bill of Quantities (BoQ) and Cost estimate of the scheme.
• The Structural design of all elements is carried out using IS 456:2000 and provision of IS 13920 since site is in Seismic Zone IV.